Předstěnový splachovací systém Geberit KOMBIFIX ECO 110.790.00.1 pro zazdění nebo předezdění. Kombifix je určený pro instalaci s mokrými procesy do masivních zděných konstrukcí nebo pro předstěnovou instalaci (před zděnou nebo betonovou stěnu) s předezděním.
Technické parametry:
- Pro ovládání zepředu
- Nastavitelné splachování
- Nádrž izolovaná proti rosení
- Přívod vody nahoře, boční nebo přesazený doleva
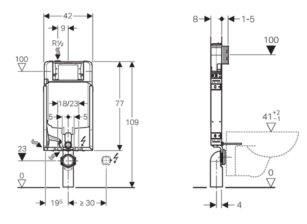
- Rozměry: 42x109×8 cm
Účel použití:
- Pro zabudování mokrým procesem do zděné předstěnové instalace
- Pro montáž závěsného WC se vzdáleností upevnění 18 cm nebo 23 cm
- Pro připojení Geberit AquaClean
- Nevhodný pro zabudování do lehkých příček a pro zabetonování
Vlastnosti:
- Geberit Sigma splachovací nádržka do stěny 8 cm s ovládáním zepředu
- Podkladní tkanina pod omítku předmontovaná
- Splachovací nádržka pod omítku pro montáž a servisní práce bez nářadí
- Tyčky tlačítka zvukově izolované, rychle nastavitelné bez nářadí
- Možné použít univerzální přípojku MeplaFix, montáž a obsluha bez nářadí
- Připojovací hadička k rohovému ventilu přišroubovatelná bez nářadí
- Upevnění odpadního kolena je možné provést zepředu
- Povrch rámu upravený práškovou barvou, barva Geberit modrá, se 4 upevňovacími pásky
- S možností upevnění pro přívod elektřiny
Technické informace:
- Rozsah tlaku vody 0.01 - 1.0 MPa
- Malé splachovací množství - rozsah nastavení 3-4 l
- Velké splachovací množství - rozsah nastavení 4,5 / 6 / 7,5 l
- Splachovací množství - nastavení z výroby 6 a 3 l
Rozsah dodávky:
- Nástěnka R 1/2", vhodná pro MeplaFix, s integrovaným rohovým ventilem a ručním ovládacím kolečkem
- Kryt pro hrubou montáž pro servisní otvor
- Připojovací souprava pro WC, ø 90 mm
- Připojovací koleno ø 90 mm
- 2 ochranné zátky
- 2 závitové tyče M12
- Souprava pro tlumení hluku
- Upevňovací materiál
Parametry
| Rozmer | 42x109x8 |
|---|---|
| Balenie | 1 |
| Zodpovednosť za vady | 2 roky |
Video
Na balenie si zakladáme! Prezrite si, ako pripravujeme a zabalíme Vašu objednávku.
