Set obsahuje
- predstenový inštalačný modul Geberit Duofix so splachovacou nádržkou pod omietku
- keramický závesný kompaktný klozet kielle Oudee so sedátkom SoftClose
- ovládacie tlačidlo Geberit Delta01 pre 2-činné splachovanie
- súpravu na tlmenie hluku
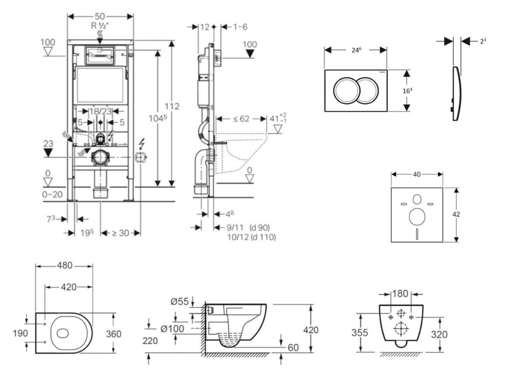
Predstenový inštalačný modul Duofix pre závesné WC so splachovacou nádržkou Delta 12 cm
- na zabudovanie do predstenovej inštalácie na čiastočnú alebo celú výšku miestnosti pred masívnou stenou alebo stenou vykonávanou suchým procesom
- pre montáž závesného WC so vzdialenosťou upevnenia 18 cm alebo 23 cm
- na hrúbku podlahy 0 - 20 cm
- pre ovládanie spredu
- pre ovládanie pomocou Geberit ovládacích tlačidiel Delta
- pre pripojenie Geberit AquaClean
- nevhodné na zabetónovanie
Vlastnosti a technické údaje
- Geberit Delta splachovacia nádržka pod omietku 12 cm (UP100), ovládanie spredu
- splachovacia nádržka pod omietku izolovaná proti orosovaniu
- nastaviteľné veľké splachovacie množstvo
- malé splachovacie množstvo pevne nastavené
- nastaviteľné okamžité spláchnutie možné
- prívod vody zozadu/zhora uprostred
- pripojovacia hadička k rohovému ventilu ručne priskrutkovateľná
- povrch rámu upravený práškovou farbou, farba Geberit modrá
- samonosný prvok
- rám s otvormi Ø 9 mm na upevnenie do drevených konštrukcií
- pozinkované podpery, plynulo nastaviteľné 0 - 20 cm
- pätné dosky z plastu, hĺbka vhodná na montáž do profilu UW50
- inštalačná hĺbka 12 cm
- splachovacie množstvo - nastavenie z výroby: 6 a 3,5 l
- veľké splachovacie množstvo - rozsah nastavenia: 4,5 / 6 / 7,5 l
Rozsah dodávky
- 2 závitové tyče M12 na upevnenie keramiky
- vypúšťací ventil pre 2 množstvo splachovania
- kryt pre hrubú montáž pre servisný otvor, penový polystyrén
- 2 ochranné zátky
- rohový ventil R 1/2" s krúžkom adaptéra
- rúrková chránička pre prívod vody pre Geberit AquaClean
- upevnenie odpadového kolena
- súprava na pripojenie Ø 90 mm
- odpadové koleno pre WC, PE-HD, Ø 90/90 mm
- prechodka, Ø 90/110 mm
- upevňovací materiál
- stavebná súprava pre predstenovú montáž
Závesné WC
- Vortex Rimless - bezokrajové prevedenie, zaisťuje dokonalé očistenie toalety pomocou vodného víru
- farba: biela
- rozmery: 360 x 480 mm
- skryté upevnenie
- hlboké splachovanie
- splachovací objem 4/6 l
WC sedátko
- s funkciou pomalého sklápania SoftClose
- farba: biela
- EasyLock ľahko odnímateľné pre ľahkú údržbu
Ovládacie tlačidlo Delta01, pre 2-činné splachovanie
- rozmery: 246 x 164 mm
- materiál: plast
- prevedenie: alpská biela
- ovládacia sila:
- obsahuje: upevňovací rámček, 2 nastaviteľné úchytky, 2 tyčky tlačidla
Protihluková sada
- pre závesné WC alebo závesný bidet
- pre montáž keramiky so vzdialenosťou upevnenia 18 cm alebo 23 cm
- prerušuje prenos hluku pri WC a bidete
- materiál: polyetylén-pena
- obsahuje: 1x zvukovo izolačnú vložku, 2x podložku
(GT)
Parametry
| Kód | SANI11CA3168 |
|---|
Na balenie si zakladáme! Prezrite si, ako pripravujeme a zabalíme Vašu objednávku.
