Coated glass predstavuje jednu z najkvalitnejších úprav skla sprchových kútov. Ide o chemickú zlúčeninu zmesi polymérov, ktorá v spojení s katalyzátormi reaguje s kremičitanovými skupinami obsiahnutými v skle. Na sklenených plochách tak vytvára súvislú vrstvu filmu, ktorá vyplní mikropóry v skle a odpudzuje vodu. Vplyvom vodeodpudivého filmu sa kvapky vody zhlukujú a stekajú z povrchu skla. Aj keď dôjde k nepatrnému udržaniu menších kvapiek na skle, nedôjde k chemickej väzbe, sklo nebude narušené a nezošedne.
Kolekcia walk-in zásten VARIO ponúka inteligentné a flexibilné riešenie podľa individuálnych a priestorových dispozícií. Stavebnicový systém skiel, vzpier a profilov umožňuje premyslené kombinácie rozmerov, farieb a tvarov zásten – či už k stene alebo do priestoru. Elegantný vzhľad vďaka minimu komponentov v chrómovom, čiernom matnom, bielom matnom, zlatom alebo zlatom matnom prevedení je vhodný pre každú kúpeľňu.
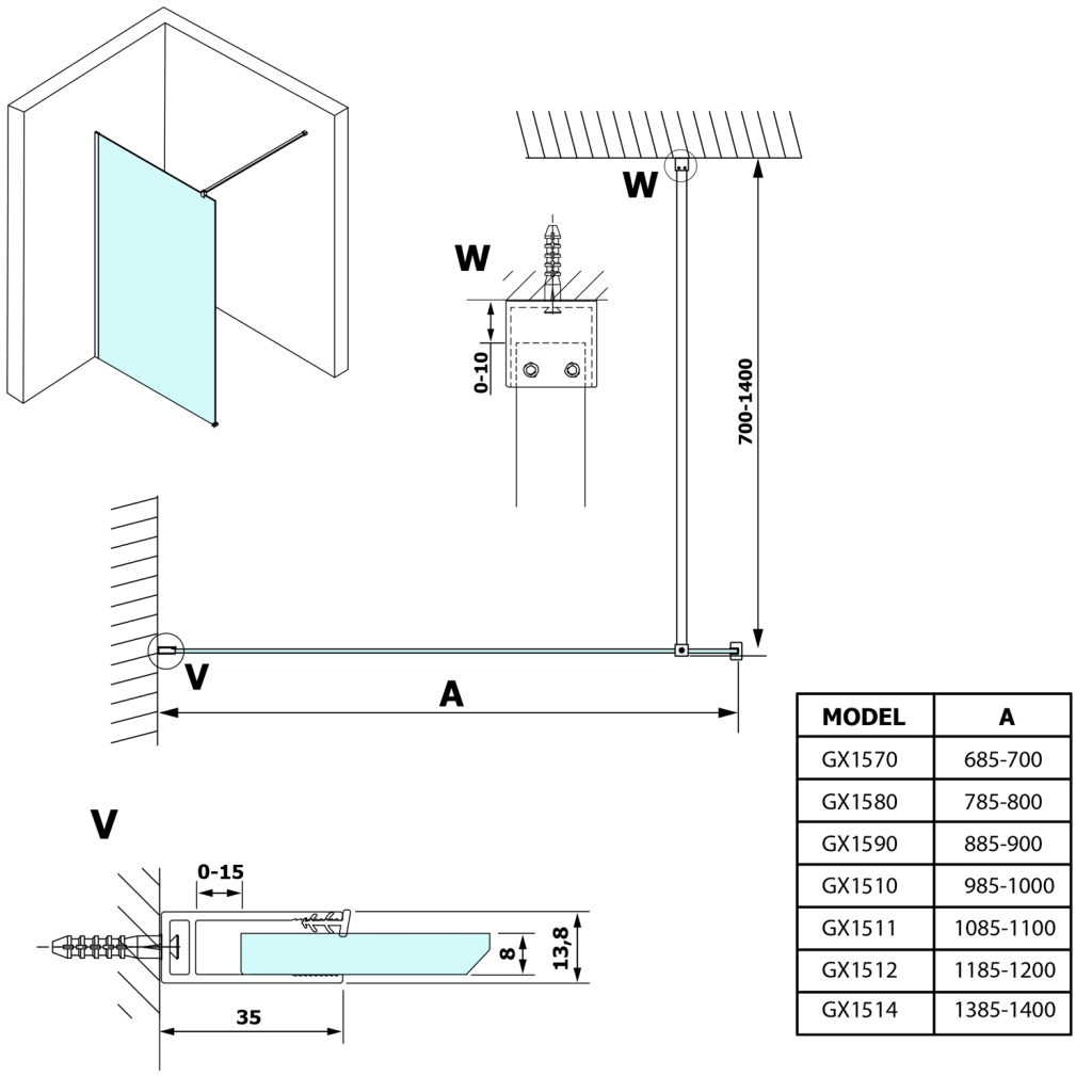
Charakteristika sprchových walk-in zásten série VARIO
- Zásteny v šírkach 700 až 1400 mm
- Bezpečnostné sklo o hrúbke 8 mm na výber v prevedení číre/dymové/matné/nordic
- Povrchová úprava Coated Glass zabraňuje usadzovaniu vodného kameňa a uľahčuje čistenie
- Stenové profily s toleranciou 15 mm uľahčujú stabilnú montáž zásten, inštalácia je možná na dlažbu alebo sprchovú vaničku
- Stenový profil zásten na výber z prevedenia: chróm / čierna mat / biela mat / zlatá / zlatá mat
- Kolmá vzpera s dĺžkou 1400 mm na výber v prevedení chróm / čierna mat / biela mat / zlatá / zlatá mat
- Kolmú vzperu je možné skrátiť na požadovaný rozmer
- Rohová vzpera o dĺžke 650 mm na výber v prevedení chróm / čierna mat
- Možnosť pridania pevného prídavného panelu o šírke 350 mm v prevedení číre sklo a farbe profilu chróm / čierna mat
- Variabilné prevedenie L/R
- Výška 2000 mm

S rohovou vzperou
a stenovým profilom
Zásteny do šírky 1000 mm

S kolmou vzperou
a stenovým profilom

Dve zásteny so stenovým
profilom spojené kolmými
vzperami a T-spojkou

Zástena v priestore
s dvoma kolmými vzperami
Parametry
| Šírka | 800 |
|---|---|
| Hrúbka výplne | 8 |
| Výplň | Nordic sklo |
| Výška | 2000 |
| Balenie | 1 |
| Zodpovednosť za vady | 3 roky |
| Ochranná vrstva skla | Coated glass |
| Kód | GX1580 |
Video
Na balenie si zakladáme! Prezrite si, ako pripravujeme a zabalíme Vašu objednávku.
