SET je dodávaný bez ovládacieho tlačidla - nutné dokúpiť!
Alcadrain modul do sadrokartónu AM101 / 1120 s vhadzovacou tabliet P169 (AM101 / 1120P169)
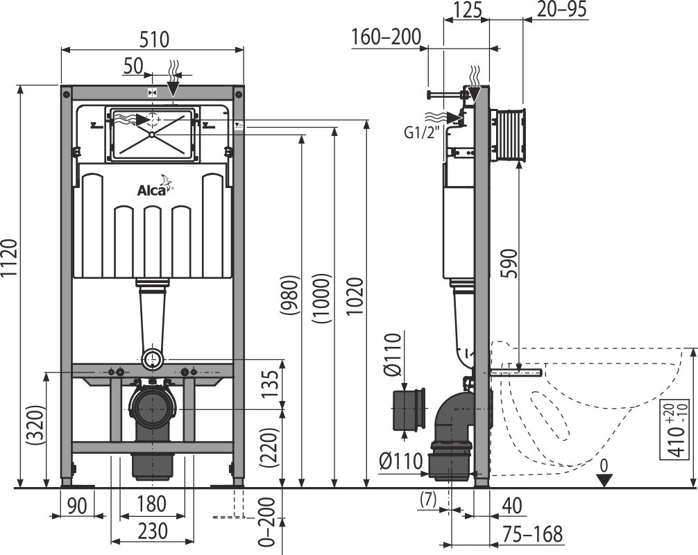
Predstenový inštalačný systém pre suchú inštaláciu (do sadrokartónu)
Pre závesné WC
Pre montáž pred nosnú stenu alebo do sadrokartónovej konštrukcie
Pre hrúbku podláh 0-200 mm
Pre montáž závesného WC s pripojovacou roztečou 180 mm alebo 230 mm
Tento inovovaný predstenový inštalačný systém ALCA s kódovým označením AM101 / 1120 Sádromodul nahrádza modelový rad A101 / 1200 Sádromodul. Inštalácia týchto systému je teraz rýchlejšie a k ich montáži vám teraz postačí len jeden kľúč.
Nastaviteľné kotviace výsuvné nohy s brzdou v rozmedzí 0-200 mm
Viditeľné označenie nivelácie a stredové rysky
Posuvný mechanizmus držiaka odpadu v ôsmich polohách vo vzdialenosti 0-93 mm
Rohový ventil s možnosťou na napojenia na potrubný systém Mepla
Konštrukcia rámu dovoľuje kotvenie k samostatnej, dostatočne nosné sadrokartónové priečke alebo pred nosnú stenu
Nainštalovaný systém sa zaklopia sadrokartónovými doskami a nie sú potrebné žiadne prídavné vystužujúce ani kotviace prvky
Konštrukcia polystyrénové izolácie zabraňuje roseniu na povrchu nádržky a tlmí prestup vibrácií z nádržky do stavebnej konštrukcie
Príprava na pripojenie držiaku s DG1 / 2 "prechodom pre Dosky a spŕšky
Duálny splachovanie, nezávisle nastaviteľné s hygienickou rezervou
Možnosť zabudovania oddialeného alebo senzorového splachovanie
Kompatibilný so všetkými ovládacími tlačidlami Alcadrain / nutné dokúpiť, nie je súčasťou /
Servisné práce bez použitia náradia
Prívod vody zozadu / zhora uprostred
Nádržka je vyrobená z jedného kusu, čím je zaručená 100% nepriepustnosť
Kryt servisného otvoru zjednodušuje montáž a bráni prenikaniu vlhkosti a nečistôt
Montážna hĺbka nastaviteľná v rozmedzí 20-95 mm
Stavebná hĺbka 125 mm
Materiál nosnej konštrukcie: kov ošetrený práškovou farbou
ZÁVESNÁ MISA DELFI BEZ SEDÁTKA (K11-0021)
Výška: 37,5 cm
Šírka: 36 cm
Hĺbka: 52 cm
Hmotnosť: 15,8 kg
Farba: biela
Závesná WC misa DELFI s funkciou splachovanie 3 / 6l.
SEDADLO DELFI POLYPROPYLEN ANTIBACTERIAL (K98-0039)
- 36,5 x 44 cm
- polypropylén
Záchodové polypropylénové antibakteriálne sedátko so štandardným zatváraním.
(GT)Parametry
| Kód | AM101/1120 X DE1 |
|---|
Na balenie si zakladáme! Prezrite si, ako pripravujeme a zabalíme Vašu objednávku.