Podlahové celonerezové kanáliky Manus s roštom v modernom dizajne a dokonalom spracovanie. Elegantné riešenie odvodnenie sprchových kútov, ktoré umožnia udržať kompaktný a zladený vzhľad kúpeľne. Slúži na odvodnenie podlahových plôch vo vnútri budov, najmä sprchových kútov a kúpeľní, kde nahradzuje sprchovú vaničku alebo podlahovou vpust.

- Kanáliky s nerezovým sifónom a extra nízkou stavebnou výškou
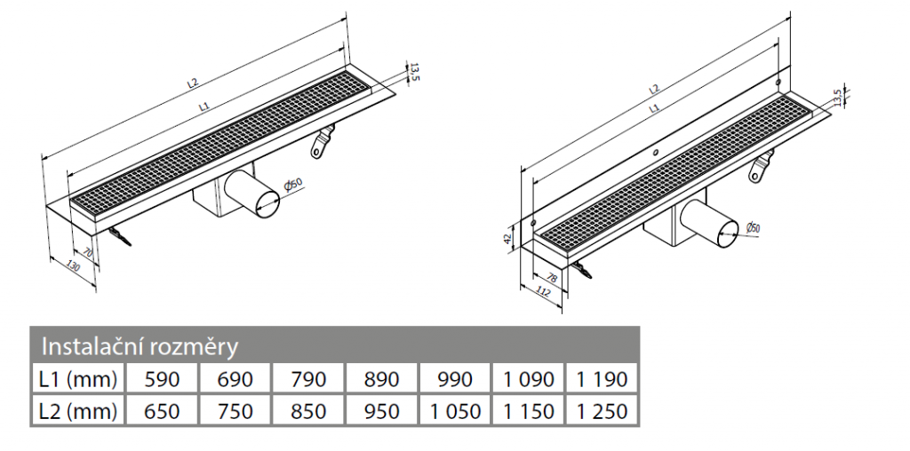
- Inštalačná výška 55 mm
- Šírka roštu 70 mm
- Prietok 42 l / min, odpad 50 mm
- Dĺžkové rozpätie: 650 až 1250 mm
- Umožňujú bezbariérový prístup do sprchovacieho kúta
- Telo kanálika aj sifónu je zvárané z nerezovej ocele AISI304, čo minimalizuje riziko vzniku netesností
- Výtok DN50 je vhodný pre všetky typy potrubných systémov
- Spádované dno žľabu pre rýchlejší odtok vody
- Ľahko vyberateľný a čistiteľný pachový uzáver umožňuje plný prístup do odpadového potrubia
- Horizontálne lem pre jednoduché napojenie stierkovej izolácie
- Vertikálne lem pre inštaláciu k stene
Rošty a údržba
Rošty kanálikov MANUS majú šírku len 70 mm, jedinečný tvar a dokonale hladký povrch. Všetky sprchové kanáliky MANUS sú kefované do saténového lesku a majú dokonale hladký povrch. Preto sa ľahko udržujú, pretože zvyšky vody a mydla je možné ľahko odstrániť.
Užívateľský komfort zvyšuje účinný protizápachový uzáver, ktorý je vyrobený z nerezovej ocele s tesniacim O - krúžkom. Táto konštrukcia vylučuje riziko straty tesnosti alebo poruchy, možno ľahko demontovať a čistiť. Poskytuje plný prístup do odpadového potrubia a jeho prípadné čistenie.



Nízka inštalačná výška
Iba 55 mm od horizontálnej príruby kanálika po dno sifónu pri zachovaní vysokého prietoku. Oceníte najmä pri rekonštrukciách kúpeľní, kedy ušetrí miesto, prácu a financie.
nastaviteľné nohy
Ohýbateľné nohy kanálika pomôžu usadiť kanálik do potrebnej polohy a výšky a výrazne uľahčí inštaláciu.

Parametry
| Materiál | Nerez |
|---|---|
| Rozmer | 65x13x5,5 |
| Šírka | 130 |
| Inštalácia | Do prostoru |
| Výška | 55 |
| Balenie | 1 |
| Zodpovednosť za vady | 2 roky |
| Dĺžka | 650 |
| Dĺžka sprchového kanálika do | 650 |
| Dĺžka sprchového kanálika od | 650 |
| Priemer odpadu | 50 |
| Farba | Nerez |
| Hĺbka | 5.50 |
| Odpad | 50.00 |
| Kód | GMO12 |
Na balenie si zakladáme! Prezrite si, ako pripravujeme a zabalíme Vašu objednávku.
