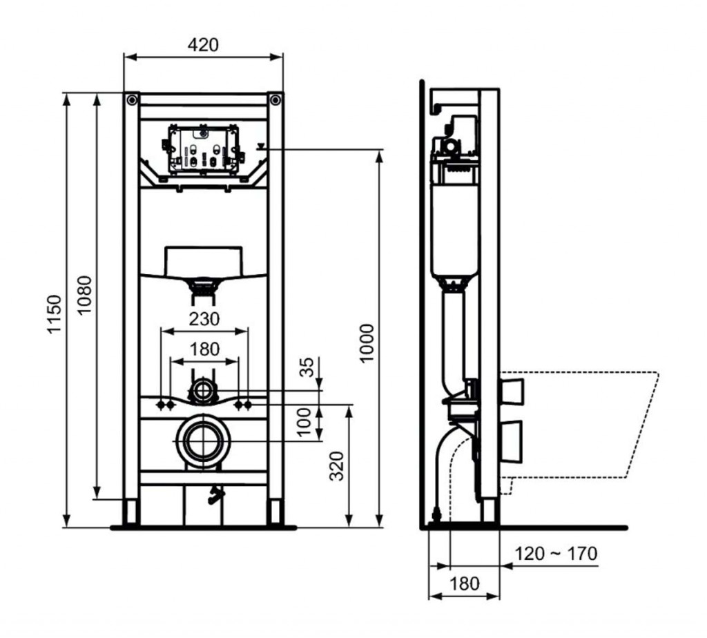
Predstenový inštalačný modul 120 MF
- pre samostatnú inštaláciu do sadrokartónu alebo ľahké múru
- uchytenie do podlahy pomocou 2 pevných nohách
- samonosný lakovaný oceľový rám s pevnou konštrukciou
- testovaná nosnosť rámu až 400 kg
- minimálna inštalačná hĺbka 180 mm
- vrátane upevňovacieho materiálu
- pre závesné toalety s montážnou rozstupom 180 alebo 230 mm
- závitové tyče M 12 x 200 mm pre keramickú montáž
- údržba nádržky bez nutnosti použitia špeciálneho náradia
- výškovo nastaviteľné nožičky pre jednoduchú inštaláciu
- ovládanie spredu
- pre kombináciu s mechanickými, pneumatickými alebo elektronickými splachovacími tlačidlami
- vhodné pre jednočinné alebo dvojčinné splachovanie
- splachovacie objem možno nastaviť ručne na vypúšťacom ventile
- dodaní: 3 litre pre malý splachovacie objem, 6 litrov pre veľký splachovacie objem
- možnosť nastavenia splachovania: od 4 do 7 litrov, malý splachovacie objem: 2 až 3 litre
- úsporná technológia SmartValve (môže ušetriť až 9 l za deň)
- možno kombinovať s hygienickým splachovacím systémom SmartFlush (nie je súčasťou dodávky)
- gumové tesnenie Ø 45 mm
odpadové koleno a adaptér Ø 90/110 mm - vrátane ochranných krytov
Prestavbové sety pre pneumatické alebo elektronické ovládanie nie je súčasťou dodávky.
(GT)Parametry
| Kód | R015467 |
|---|
Na balenie si zakladáme! Prezrite si, ako pripravujeme a zabalíme Vašu objednávku.
