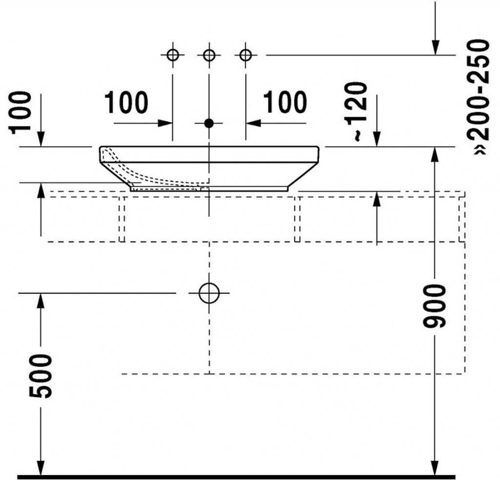
Umývadlo bez prepadu
- rozmery: 600 x 380 x 120 mm
- materiál: sanitárna keramika, spodná strana brúsená
- bez otvoru pre umývadlovú batériu
- inštalácie: usadením na dosku
- vrátane upevnenia
(GT)
Parametry
| Kód | 0349600000 |
|---|
Na balenie si zakladáme! Prezrite si, ako pripravujeme a zabalíme Vašu objednávku.
